PLAZA GASTRONÓMICA Y COMERCIAL

La plaza contará con 3 islas comerciales (Agotadas) 13 locales cuidadosamente distribuidos, ofreciendo una variedad de propuestas gastronómicas, culturales y de servicios que complementan la experiencia de quienes transitan por el corazón de la ciudad amurallada.

En el primer piso, una elegante plaza interna climatizada se convierte en un punto de encuentro dinámico y lleno de vida.

Galería DE LOCALES COMERCIALES

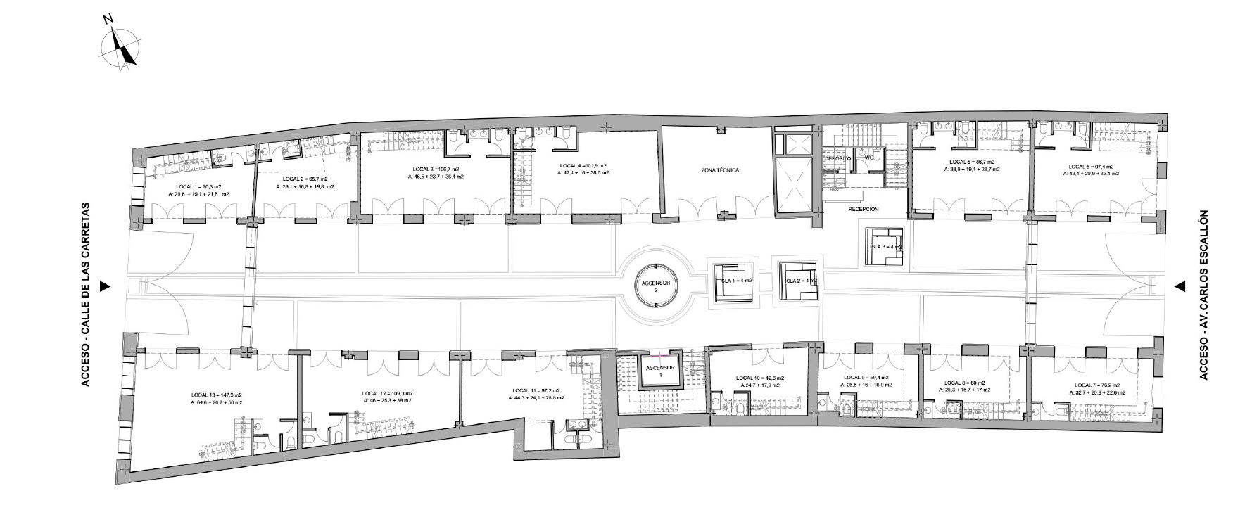
Plano General Plaza Gastronómica y Comercial

Conoce el plano de la plaza comercial y sus 13 locales, un espacio pensado para integrar gastronomía, comercio y cultura en el Centro Histórico de Cartagena.

Piso 1 Locales comerciales

Plano

PLANOS DE LOCALES Y ISLAS

Filtrar Disponibilidad

Filtrar Tipo

Vendido

isla 1

Vendido

isla 2

Vendido

isla 3

local 1

local 2

local 3

local 4

local 5

local 6

local 7

local 8

local 9

local 10

local 11

local 12

local 13